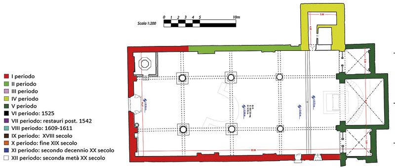
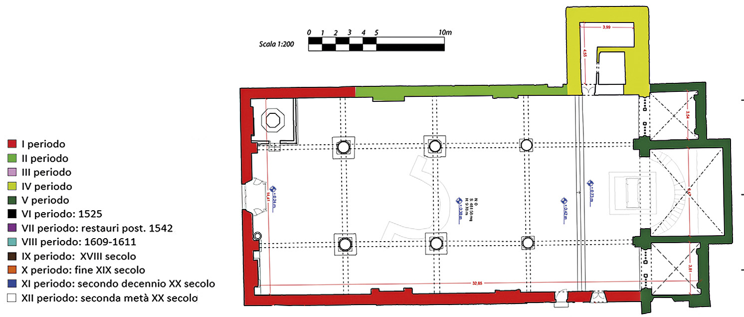
Sezione planimetrica della Pieve di Sant’Agata all’altezza di circa 1,5 m da terra (rilievo e restituzione: M. Repole; coordinamento: A. Arrighetti, G. Minutoli).

Part of Analisi e documentazione archeologica dell’edilizia storica in aree a rischio sismico: dall’atlante dei tipi costruttivi murari all’impiego delle moderne tecnologie di rilievo

Position: 3317 (4 views)